BEFORE & AFTER

--- --- ---

Before & After

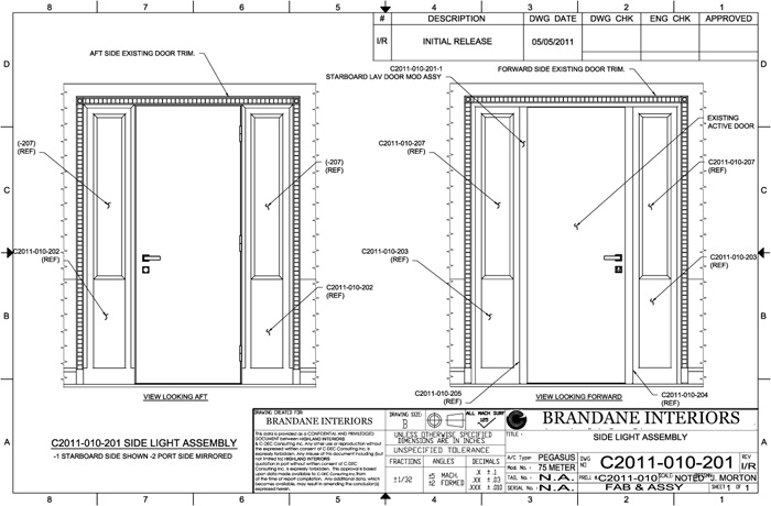
Convert double entry doors to master heads to be single door with fixed matching side panels.
M/Y “Pegasus”

View More Before & After Projects:

PROJECT II    -    PROJECT III    -    PROJECT IV

Our Experience

Our workforce is made up of highly experienced carpenters and cabinetmakers who together represent more than 100 years in the industry. They are well-known in our field for producing some of the finest results in high-end yacht cabinetry. We are proud of our work and would like to show you some of the before and after process.

CABINETRY & TABLES

FITMENTS

DETAILS

BEFORE & AFTER

Talk With Us